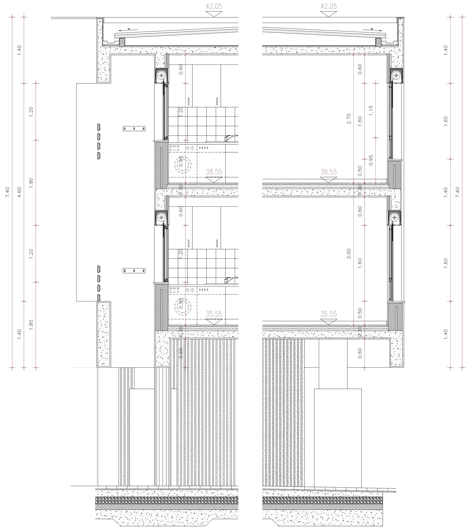
Année du projet
2005
Emplacement
Abrantes, Santarém, Portugal

Abrantes - Habitation à coûts contrôlés

Votre partenaire pour des projets architecturaux sur-mesure à Gland

Situé à Gland, notre bureau d’architecture offre une expertise complète dans la conception et la réalisation de projets architecturaux, adaptés aux besoins spécifiques de nos clients. Nous mettons un point d’honneur à allier créativité, fonctionnalité et durabilité dans chacune de nos réalisations.

Fort de plusieurs années d’expérience, nous collaborons avec des particuliers, des entreprises et des institutions pour développer des projets uniques. De l’étude de faisabilité à la livraison finale, notre équipe vous accompagne à chaque étape pour garantir des résultats à la hauteur de vos attentes.

Notre mission est de transformer vos idées en espaces de vie et de travail harmonieux, innovants et respectueux de l’environnement.

Contactez-nous pour discuter de vos projets et découvrir comment nous pouvons les concrétiser avec professionnalisme et passion.